| 层 数 |
三层别墅
|
结构形式 |
砖混结构
|
建筑风格 |
简欧风格
|
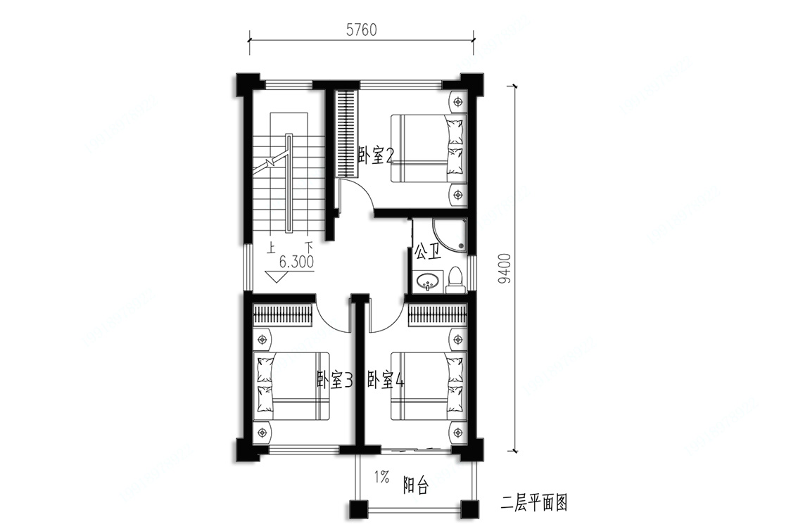
| 开 间 |
5.76m
|
占地面积 |
63㎡
|
建筑面积 |
225㎡
|
| 进 深 |
9.4m
|
主体造价 |
35-40w (仅供参考)
|
制作软件 |
cad
|
请您在下订单前与在线客服确认配送范围。
您在本站订购的图纸,我们客服人员会电话与您联系确认图纸编号、收货信息等, 感谢您对本站的关注,祝您网上购物愉快!
购图前重要说明:
购买本套图纸仅提供打印好的图纸一份,我们不出售电子文件、光盘。我们设计的图纸非常详细,用A3规格打印图纸,比传统蓝图更清晰、容易复印、方便收藏,可以直接应用到施工现场。售后服务仅为图纸答疑,不包任何修改,因为只要其中一张图纸改变,其它图纸相应均需修改,工作量较大,所以我们不包修改。如果您个性要求较多需按要求订做设计,请查看别墅设计业务流程,并联系设计客服咨询设计收费标准。