| 层 数 |
三层别墅
|
结构形式 |
框架结构
|
建筑风格 |
简欧风格
|
| 开 间 |
18m
|
占地面积 |
212.4㎡
|
建筑面积 |
514㎡
|
| 进 深 |
11.8m
|
主体造价 |
70-82w (仅供参考)
|
制作软件 |
cad
|
图纸内容 | |||
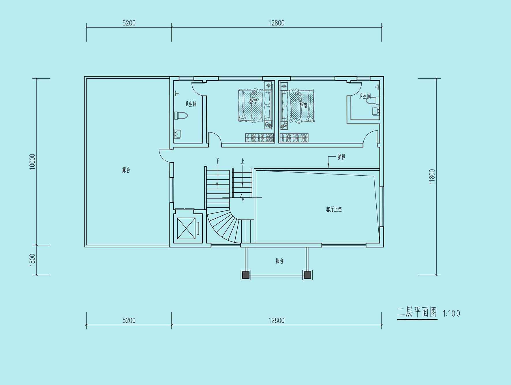
建筑图 | 建筑设计说明,构造表,一层平面图,二层平面图 ,三层平面图, 屋顶平面图,立面图,剖面图,节点大样图,楼梯大样图,门窗大样图,门窗表 | ||
结构图 | 结构设计说明,基础平面布置图,基础大样图,基础施工图,一层结构施工图,二层结构施工图,三层结构施工图,屋面施工图,楼梯大样图 | ||
给排水图 | 给排水设计说明,一层给排水平面图,二层给排水平面图,三层给排水平面图,屋顶层排水平面图,给排水系统原理图,卫生间给排水详图,化粪池大样图,污水检查井大样图 | ||
电气图 | 电气设计说明,主要设备及材料表,配电箱系统图,弱电系统图,基础接地平面图,屋面防雷平面图,照明平面图,插座平面图,弱电平面图 | ||





请您在下订单前与在线客服确认配送范围。
您在本站订购的图纸,我们客服人员会电话与您联系确认图纸编号、收货信息等, 感谢您对本站的关注,祝您网上购物愉快!
购图前重要说明:
购买本套图纸仅提供打印好的图纸一份,我们不出售电子文件、光盘。我们设计的图纸非常详细,用A3规格打印图纸,比传统蓝图更清晰、容易复印、方便收藏,可以直接应用到施工现场。售后服务仅为图纸答疑,不包任何修改,因为只要其中一张图纸改变,其它图纸相应均需修改,工作量较大,所以我们不包修改。如果您个性要求较多需按要求订做设计,请查看别墅设计业务流程,并联系设计客服咨询设计收费标准。